
Burgemeester Jan Hamming heeft besloten om het cameratoezicht op het Kuipersveld in Koog aan de Zaan te verlengen tot en met 30 september en bovendien uit te breiden. Vijf fracties stuurden hem afgelopen week een brandbrief na het zoveelste incident: bewoners willen weten wat er nu eigenlijk aan de hand is.
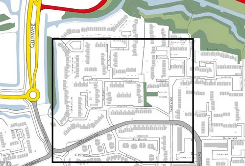
De burgemeester kan op grond van de Gemeentewet en de Algemene Plaatselijke Verordening besluiten dat ergens camera's noodzakelijk zijn om de openbare orde te handhaven. Eerder gebeurde dat tijdelijk in het Burgemeester In 't Veldpark en bij de Ringweg in Zaanstad en ze hangen nog bij het station Krommenie - Assendelft . Rondom een woning op het Kuipersveld deden zich in korte tijd meerdere ernstige incidenten voor, waarbij ook gewonden hadden kunnen vallen.
De politie noteerde dit jaar een verdacht pakketje, een explosie waarbij een keukenraam sneuvelde, drie afgebrande auto's en een aanslag met een vuurwerkbom die een geparkeerde scooter vernielde. Na dat laatste voorval werd cameratoezicht ingesteld, maar op 2 augustus ging er opnieuw een explosief af
op het grasveld aan de Glazenmaker. In de nacht van 4 op 5 augustus brandde vervolgens zo'n 100 meter verderop op de Rozeboom een auto uit.
'Hieruit blijkt dat er na het instellen van cameratoezicht op 9 juli nabij de woning geen ernstige incidenten zoals brandstichting hebben plaatsgevonden. De camera’s hebben dus geholpen om de openbare orde te waarborgen. Echter op een locatie op 100 meter afstand waar geen camera staat is de openbare orde ernstig verstoord. Hieruit is gebleken dat het op grond van de openbare orde noodzakelijk is om het cameratoezicht te verlengen en uit te breiden,' aldus het besluit van de burgemeester . Dit ondanks het feir dat 'de politie en gemeentelijke handhavers al veelvuldig in het gebied aanwezig zijn'.






