
Bewoners van de Rosmolenbuurt zien groen en bomen verdwijnen ten behoeve van parkeerplaatsen voor personeel van het Zaans Medisch Centrum dat de eigen parkeergagage van het ziekenhuis te duur vindt. Dat betoogt de actiegroep voor het behoud van bomen in Zaanstad vanmiddag mede namens bewoners tijdens een hoorzitting over de bomenkap in fase vier van de herinrichting van de wijk.
In eerdere correspondentie over het onderwerp liet de gemeente weten bekend te zijn met het parkeren van ZMC-medewerkers en bezoekers en daarover in gesprek te zijn met het ziekenhuis om dit zoveel mogelijk te beperken. Maar omdat er ‘niet specifiek voor het ZMC extra plekken’ worden aangelegd, is dat voor de gemeente geen thema om aan te snijden tijdens bewonersoverleggen of in de communicatie over de plannen. De extra parkeerplaatsen komen er op verzoek van de bewoners, aldus de gemeente.
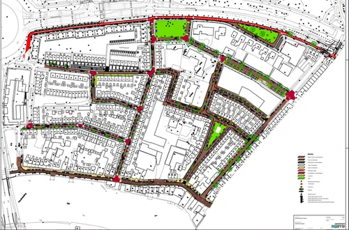
Groen Zaans, Houd Zaanstad Groen stelt daar tegenover dat bewoners van de Herderinstraat en Taamstraat deels overvallen zijn door de herinrichting, niet blij zijn met auto’s pal voor de deur in de krappe straten en dat ze bomen en struiken met lede ogen zien verdwijnen. Volgens de gemeente zijn de bestaande bomen echter van een matige kwaliteit, hebben die geen ruimte om te groeien en komen er bovendien veel mee r bomen terug dan er gekapt worden: er verdwijnen 48 en er worden 116 herplant , van de soorten Sorbus commixta Belmonte ( Japanse lijsterbes ) en
Betula utilis Doorenbos ( zilverberk ).
‘ Dat zijn 68 extra bomen in de wijk die met de juiste standplaats volwaardig kunnen uitgroeien. En in de toekomst zorgen voor een klimaatbestendige wijk en voldoende ruimte voor natuurontwikkeling,’ aldus de gemeente in antwoord op eerdere vragen van Zaans Groen. ‘De plantmaat die we standaard toepassen is maat 18-20. Dit is al groter dan landelijk gemiddeld wordt toegepast. Bovendien planten we geen zware maten in Zaanstad vanwege de slappe bodem. Dergelijke bomen hebben geen/beperkte toekomst en zullen niet functioneren zoals oorspronkelijk bedoeld (schaduw/verkoeling, wateradaptatie, CO2 opslag en afvang van vervuilende stoffen).’ De door Zaanstad gehanteerde plantmaat betekent een boom met een stamomtrek van achttien tot twintig centimeter op een meter hoogte en een totale hoogte van 475 tot 550 centimeter .
Zaanstad liet ook nog weten dat in bestaande wijken geen parkeernorm wordt gehanteerd, met uitzondering van nieuwbouw in oudere stadsdelen. ‘Op basis van een verzoek uit de wijk worden waar mogelijk extra parkeerplaatsen aangelegd.’ De openbare hoorzitting begint om 16:55 uur in de stadhuis in Zaandam.