
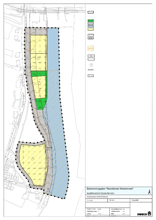
De nieuwbouw die projectontwikkelaar BPD gaat realiseren a an het Noordeinde in Wormerveer gaat voor 30 procent uit sociale woningbouw bestaan. Er is plek voor maximaal 100 huizen, zowel eengezinswoningen als appartementen .
Ze komen aan de westoever van de Zaan, daar waar het Noordeinde afbuigt van het water en in noordelijke richting overgaat in de Noorddijk. ‘Hoewel Wormerveer een aanzienlijk deel sociale huur heeft, is nieuwbouw in deze sector goed voor vernieuwing in de wijk,’ aldus het college. Bij het bouwplan hoort ook de nieuwbouw van basisschool de Toermalijn. Noch de aanvraag voor de omgevingsvergunning voor de woningen noch die voor de school is al ingediend.
[caption id="attachment_24731" align="alignnone" width="300"] 
[caption id="attachment_24624" align="alignleft" width="231"] 





