
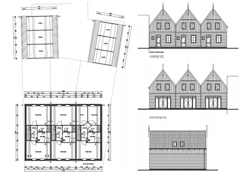
Het college is akkoord met de bouw van drie woningen en zes garageboxen aan de Willem Sijpesteijnstraat 2A in Assendelft. Daarvoor wordt het bestaande bedrijfspand dat als laatste werd gebruikt voor de verkoop van brommers gesloopt. De bijbehorende schuur brandde in 2012 af en bleek toen een hennepplantage te herbergen.
Het bouwplan sluit volgens de beoordeling van de plannen aan op de aangrenzende woningen en bij het straatbeeld. De ontsluiting aan de achterzijde gaat via een bestaande uitrit tussen twee woningen door, waaraan de zes bergingen zijn gepland die bij de huizen horen. De nabijheid van Forbo Flooring is met enige aanpassingen aan de geluidsisolatie geen onoverkomelijke hinderpaal voor de bouw en qua geur: die is 'beter dan onaangenaam' en geurfilters zullen binnenin de huizen zorgen voor een prettig woonklimaat.
De grond onder de te bouwen bergingen is matig tot sterk verontreinigd met PAK en zink, matig met lood en licht met enkele andere zware metalen, minerale olie en PCB. Er is geen asbest aangetroffen. Een geval van ernstige bodemverontreiniging kan niet worden uitgesloten, aldus het uitgevoerde onderzoek. Maar omdat deze zich niet verspreidt en afgedekt is en zal blijven met bebouwing, is er ook in de toekomst geen sprake van actuele risico’s voor de mens, het ecosysteem en voor verspreiding.
De directe omgeving is al twee jaar op de hoogte van de voorbereidingen van het bouwplan en is overwegend positief, aldus het college. De eigenaar van de naastgelegen woning is gemengd positief: de ontwikkeling van bedrijfsbestemming naar woningen wordt als positief ervaren, maar er komt wel weer bebouwing op korte afstand van de bestaande woning. De eigenaren van de woningen naast de uitrit aan de Dorpsstraat hebben geen gezwaren: ze zien het rommelige bestaande gebouw graag verdwijnen en ondervinden nu overlast van jongeren die op het naastgelegen afgesloten terrein proberen te komen. Zij moeten daarom vaak de hekken weer vastmaken.
Zeer gewaardeerd wordt het doorzetten van de 'Zaanse' stijl zoals die de ook is toegepast bij de naastgelegen huizen, aldus de toelichting van het college. 'In het algemeen zijn de bewoners aangrenzend aan de locatie, aan de overzijde, verder in de straat en in de nabijgelegen staten positief over de nieuwbouw van de drie woningen ter vervanging van de bestaande situatie.'
De gemeente wil graag natuurinclusief bouwen en daarvoor is ook aandacht in het bouwplan. Vanwege de omliggende biotopen zijn de volgende aanbevelingen gedaan: de plaatsing van vleermuiskasten of het geschikt maken van spouwmuren van de nieuwbouw voor vleermuizen, het plaatsen van voorzieningen voor huismussen, spreeuwen en gierzwaluwen door middel van speciale dakpannen, vogelvides of inmetselstenen en het beplanten en aanleggen van groenstructuren met inheemse soorten die insecten, vogels en vlinders kunnen aantrekken. 'Dergelijke maatregelen bevorderen de leefbaarheid van nieuwbouwprojecten aanzienlijk. Ook dragen deze maatregelen sterk bij aan een versnelling van het natuurlijk evenwicht in een nieuwbouwsituatie. Dit kan typische problemen als spinnenoverlast of muizenplagen van nieuwbouwprojecten voorkomen.'
T





